Δωδεκαώροφες: Μια εν δυνάμει μοντέρνα κηπούπολη στο κέντρο της πόλης
Το αντικείμενο της διπλωματικής εργασίας του Δημοσθένη Σάκκου, μια πρόταση για την περιοχή.

Λέξεις: Δημοσθένης Σάκκος | Msc Αρχιτέκτων Μηχανικός Α.Π.Θ. | Msc Προστασία Συντήρηση και Αποκατάσταση Μνημείων Πολιτισμού Α.Π.Θ.
Ο οικισμός των εργατικών κατοικιών της Πύλης Αξιού στην περιοχή της Ξηροκρήνης (ή συνοικισμός των δωδεκαώροφων όπως γίνεται πιο εύκολα αναγνώσιμος) αποτελεί έργο της περιόδου 1967- 1974.
Εξετάζοντας την περιοχή διαχρονικά, παρατηρείται ότι, στην συγκεκριμένη τοποθεσία, ήδη από τις αρχές του 20ου αιώνα συναντάται η δόμηση νέων συνοικισμών. Οι πρώτοι συνοικισμοί, ισραηλιτικοί, δομήθηκαν μετά την μεγάλη πυρκαγιά του 1917 για την αποκατάσταση των πυροπαθών του κέντρου. Η κύρια συνοικία, το Ρεζί Βαρδάρ, αποτελούσε δείγμα οργανωμένης οικιστικής δόμησης και είχε τον χαρακτήρα της κηπούπολης. Αργότερα το 1924, 1928 και το 1932, πλησίον του ισραηλιτικού συνοικισμού, παραπήγματα κτίστηκαν από το Υπουργείο Πρόνοιας για την αποκατάσταση προσφύγων, συμπληρώνοντας τον δομημένο χώρο της Ξηροκρήνης. (Σαββαΐδης, xx) Η ισοπέδωση του Ρεζί Βαρδάρ από τον Δήμο Θεσσαλονίκης υπό διαταγή των γερμανικών αρχών το καλοκαίρι του 1943, (thessalonikijewishlegacy, 2018) μετέβαλε τον οργανωμένο χαρακτήρα της περιοχής, εντείνοντας τον χαρακτήρα του παραπηγματικού οικισμού.
ΔΕΙΤΕ ΕΠΙΣΗΣ: 10 πράγματα που κάθε Θεσσαλονικιός πρέπει να ξέρει για τις Δωδεκαώροφες
Το 1967, την θέση των εναπομεινάντων παραπηγμάτων έλαβαν τα κτίρια του νέου οικισμού.
Φορέας οργάνωσης και σχεδιασμού του έργου αποτέλεσε ο Ανεξάρτητος Οργανισμός Εργατικής Κατοικίας. Η κατασκευή των 722 διαμερισμάτων στην συνολική έκταση των 143620m2 αλλά και η διαμόρφωση του αστικού χώρου εντός του νέου οικισμού, ανήκουν σε κοινό οικοδομικό πρόγραμμα μεταξύ του Α.Ο.Ε.Κ. και του Υπουργείου Κοινωνικής Πρόνοιας. Στόχος ήταν η παράλληλη αποκατάσταση των παραπηγματούχων της περιοχής αλλά και η προσφορά κατοικίας σε δικαιούχους εργαζόμενους του Α.Ο.Ε.Κ..


Η συμμετοχή κάποιου επώνυμου αρχιτέκτονα στην διαδικασία σχεδιασμού δεν επισημαίνεται, με μοναδική εξαίρεση την περίπτωση του Άρη Κωνσταντινίδη που διετέλεσε προϊστάμενος της Υπηρεσίας Μελετών του Α.Ο.Ε.Κ. Η εκπόνηση της μελέτης υλοποιήθηκε μέσω του τμήματος μελετών. Οι αρχιτέκτονες του οργανισμού, στα πρότυπα της μοντέρνας πολεοδομίας, με ελεύθερο σύστημα δόμησης, χωροθέτησαν τα κτίρια του οικισμού. Σε αυτά εντοπίζονται σαφείς επιρροές από έργα του ευρωπαϊκού χώρου της περιόδου, αλλά και τυπολογικά δάνεια από προγενέστερους εργατικούς οικισμούς του ελλαδικού χώρου.

Στο Φ.Ε.Κ. του 1965 έγινε η τροποποίηση του ρυμοτομικού σχεδίου της περιοχής και έτσι προέκυψαν τα οικοδομικά τετράγωνα του σημερινού οικισμού. Την κατασκευή του συνόλου των κτισμάτων, ανέλαβε κατασκευαστική εταιρεία, μέσω της διαίρεσης του έργου σε πέντε εργολαβίες. Η αρχή έγινε το 1967. Οι ρυθμοί της κατασκευής ήταν έντονοι και το έργο παραδόθηκε στο σύνολό του σε χρονικό διάστημα δύο ετών από την έναρξη των εργασιών με εξαίρεση τα κτίρια των τεσσάρων δωδεκαώροφων πολυκατοικιών όπου ο χρόνος κατασκευής ήταν τέσσερα έτη από την στιγμή της έναρξης των εργασιών. Στο Φ.Ε.Κ. 175Δ του 1971 νομιμοποιήθηκε και η υπέρβαση του μεγίστου επιτρεπόμενου ύψους των κτιρίων, επιτρέποντας το ύψος των 43m για τα κτίρια των δωδεκαώροφων επί της οδού Λαγκαδά. Στις 19 Δεκεμβρίου του 1971 έγινε η κλήρωση για τις κατοικίες των χαμηλότερων κτιρίων, ενώ τρία χρόνια αργότερα εγκαταστάθηκαν οι ένοικοι των διαμερισμάτων των δωδεκαώροφων.
Στοιχεία του ιδιαίτερου χαρακτήρα του οικισμού
Ο οικισμός των εργατικών κατοικιών της Πύλης Αξιού αποτελεί ιδιαίτερα ενδιαφέρον τεκμήριο της εξέλιξης του τρόπου δόμησης οικισμών εργατικών κατοικιών στην Ελλάδα, την περίοδο από το 1954 μέχρι και το 1974. Στον οικισμό συναντάμε έξι διαφορετικές τυπολογίες κτιρίων μέσω των οποίων εκφράζεται και η αλλαγή του τρόπου ζωής των εργαζομένων στην Ελλάδα. Έτσι οι νεωτερικοί πύργοι των δωδεκαώροφων πολυκατοικιών, γειτνιάζουν με τυπικές τετραώροφες πολυκατοικίες, σχεδιασμένες την ίδια περίοδο. Παράλληλα, εντός των ορίων του οικισμού υπάρχουν και τα κτίρια που κατασκευάστηκαν για λογαριασμό του Υπουργείου Κοινωνικής Πρόνοιας. Αυτά είναι όμοια με κτίρια που συναντώνται ευρέως σε οικισμούς εργατικών κατοικιών.
Τυπολογίες κτιρίων

1_ Οι δωδεκαώροφες (τύπος 12001)
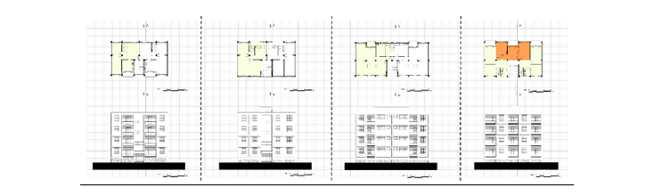
Οι δωδεκαώροφες πολυκατοικίες του συγκροτήματος της Πύλης Αξιού, αποτέλεσαν ένα πιλοτικό πρόγραμμα και ένα πείραμα για κατοίκηση σε πολυώροφους πύργους. Αν και η κάτοψη αυτή αποτελεί επαναλαμβανόμενη τυπολογία κτιρίου για τον ΑΟΕΚ, τα μοναδικά κτίρια με 12 ορόφους είναι αυτά στον οικισμό της Πύλης Αξιού. (Γκουβούση, 2011)Στο αρχείο του οργανισμού, οι κωδικοί αριθμοί 6001, 8001 και 12001 αναφέρονται στον ίδιο σχεδόν τύπο κάτοψης και μεταβάλλεται μονάχα ο αριθμός των ορόφων. Μορφολογικά τα κτίρια των δωδεκαώροφων πολυκατοικιών, αποτελούν δείγμα του ύστερου μοντερνισμού, και σε σχέση με τα πρώιμα μοντέρνα κτίρια είναι πιο επιβλητικά και διαφέρουν ως προς τις αναλογίες,. Η λογική ότι η μορφή προκύπτει από την λειτουργία, κατά τα πρότυπα του Bauhaus, οργανώνει τις όψεις και τις κατόψεις του κτιρίου. Σε επίπεδο όψεων, η οριζόντια γραμμή που ορίζει τα διαφορετικά επίπεδα κυριαρχεί ενώ διακοσμητικά στοιχεία και επενδύσεις απουσιάζουν πλήρως από τις όψεις.

Η κάτοψη του τυπικού ορόφου είναι σχεδόν τετράγωνη και στο κέντρο βρίσκεται ο πυρήνας του κλιμακοστασίου με τους δύο ανελκυστήρες. Περιμετρικά αυτού, αρθρώνονται τρία διαμερίσματα, σε αντίθεση με τον τύπο 8001 όπου ο κάθε όροφος αποτελείται από τέσσερα διαμερίσματα. Ενδιαφέρον παρουσιάζει και η κάτοψη του ισογείου, όπου η επιθυμία των σχεδιαστών για ελεύθερη κίνηση διαμέσου του κτιρίου είναι εμφανής. Στα πρότυπα και πάλι των μοντέρνων περιπτέρων και με ένα παιχνίδι με επίπεδα τοιχοποιίας και γυαλιού, οι σχεδιαστές οργάνωσαν το επίπεδο της εισόδου. Οι πύργοι των δωδεκαώροφων ξεχωρίζουν σε επίπεδο σχεδιασμού από τα υπόλοιπα κτίρια του οικισμού τόσο λόγω του όγκου τους αλλά και λόγω του πιο έντονου αστικού χαρακτήρα σε σχέση με τα υπόλοιπα διαμερίσματα του οικισμού.
2_ Τα κτίρια για το Υπουργείου Κοινωνικής Πρόνοιας

Μορφολογικά τα κτίρια αυτά αποτελούν τεκμήριο του ευρωπαϊκού μοντερνισμού όπως αυτός υιοθετήθηκε από τους αρχιτέκτονες της εποχής. Καθ΄ όλη την περίοδο που προϊστάμενος ήταν ο Άρης Κωνσταντινίδης και αργότερα επί Σκιαδαρέση (Γκουβούση, 2011), τα κτίρια του οργανισμού είχαν την μορφή απλού, καθαρού ορθογωνικού όγκου που το μόνο στοιχείο που οργάνωνε τις όψεις, αποτελώντας παράλληλα και μορφολογικό στοιχείο, ήταν ο στατικός κάνναβος που πλαισίωνε τα ανοίγματα. Τα κτίρια του οικισμού που κατασκευάστηκαν για λογαριασμό της Πρόνοιας, αποτελούν επανάληψη και παραλλαγή κτιριακών μονάδων που είναι γνωστοί από άλλους παλαιότερους οικισμούς εργατικών κατοικιών όταν προϊστάμενος της διεύθυνσης τεχνικών μελετών ήταν ο Άρης Κωνσταντινίδης. Αντίστοιχες τυπολογίες συναντώνται στον οικισμό εργατικών κατοικιών της Νέας Φιλαδέλφειας. Η λειτουργικότητα κυριαρχεί και η μορφή προκύπτει καθαρά από την λειτουργία. Στον οικισμό της Πύλης Αξιού, τα κτίρια της Πρόνοιας κατηγοριοποιούνται σε 4 τύπους, ανάλογα με την επιφάνεια των διαμερισμάτων και τον αριθμό αυτών ανά όροφο. Οι πρώτοι δύο τύποι είναι από τις παλαιότερες επαναλαμβανόμενες κατόψεις. Η κάτοψή τους απαρτίζεται από δύο διαμερίσματα στον όροφο. Αντίστοιχα και ο επόμενος τύπος, ο Γ, αποτελείται από δύο διαμερίσματα στον όροφο, έχοντας όμως μεγαλύτερη κάτοψη. Ο τυπικός όροφος αποτελεί μετατροπή της βασικής τυπολογίας των Α και Β, με την προσθήκη ενός επιπλέον μέρους του καννάβου. Τέλος ο τύπος Δ, έχει κάτοψη αντίστοιχων διαστάσεων με τα Α και Β, ωστόσο ο κάθε όροφος περιλαμβάνει τρεις μικρότερες κατοικίες. Σε όλα αυτά τα κτίρια απουσίαζαν οι ενιαίοι χώροι, κάτι που υπαγορεύεται και από την έλλειψη οργανωμένου συστήματος θέρμανσης κατά τον αρχικό σχεδιασμό.
3 Οι εργατικές κατοικίες τύπος 4004
Ένας ακόμη τύπος πολυκατοικιών που συναντάται στο συγκρότημα εργατικών κατοικιών της Πύλης Αξιού είναι αυτός του τύπου 4004. Ο τύπος αυτός επαναλαμβάνεται συμμετρικά στον αστικό χώρο του συγκροτήματος και λόγω της κάτοψής του, σχήματος Η, σχηματίζει συγκροτήματα με ενδιαφέροντες χώρους μεταξύ των κτιρίων. Ο κάθε όροφος απαρτίζεται από τέσσερα διαμερίσματα που ανά δύο είναι η ίδια μονάδα.
Κατασκευαστική δομή
Γενικά όλα τα κτίρια του συγκροτήματος αποτελούν τυπικούς ολόσωμους φορείς από οπλισμένο σκυρόδεμα με αρκετά πυκνό κάνναβο υποστυλωμάτων και δοκών.

Ενδιαφέρουσα είναι η μελέτη της κατασκευαστικής δομής των δωδεκαώροφων πύργων και ιδιαίτερα του συγκροτήματος επί της οδού Λαγκαδά. Σε αυτό πέραν από το κύριο στοιχείο του ισχυρού πυρήνα κατακόρυφης επικοινωνίας που αποτελείται από τοιχώματα και στις δύο διευθύνσεις, σε ενιαίο επίπεδο της θεμελίωσης, εδράζονται πέραν από τους δύο πύργους και άλλοι τέσσερις φορείς που απλά εφάπτονται ο ένας δίπλα στον άλλον μεσολαβώντας μεταξύ τους αρμός. Οι τέσσερις αυτοί φορείς στο σημείο επαφής με τους πύργους δεν φέρουν υποστυλώματα και απλά «ακουμπάνε» πάνω σε φουρούσια που σχηματίζονται στην εξωτερική πλευρά των υποστυλωμάτων των πύργων.

Η κατάσταση σήμερα και οι δυνατότητες προς αξιοποίηση. Πρόταση αποκατάστασης και ανάδειξης

Η κατάσταση του οικισμού της Πύλης Αξιού σήμερα δεν διαφέρει σημαντικά από την κατάσταση του υπόλοιπου αστικού ιστού που τον περιβάλλει, αλλά και όλων των ελληνικών αστικών κέντρων. Το περίπλοκο ζήτημα της ιδιοκτησίας και της αντίληψης αυτής μονάχα στα στενά όρια του κάθε διαμερίσματος, σε συνδυασμό με την έντονη πολυπλοκότητα του αστικού χώρου κατά τον πρώτο σχεδιασμό, έχουν σαν αποτέλεσμα την υπονόμευση και τελικά την υποβάθμιση του οικισμού. Παράλληλα, σε κτιριακό επίπεδο, οι ποικίλες αλλοιώσεις, προσθήκες και αποσπασματικές μετατροπές των διαμερισμάτων από τους ενοίκους τους έχουν οδηγήσει στην αισθητική και λειτουργική υποβάθμιση κάθε κτιρίου του οικισμού.





Παρά την υφιστάμενη κατάσταση του οικισμού και την εικόνα υποβάθμισης του κτιριακού του αποθέματος, από την γέννησή του υπάρχουν δυναμικά στοιχεία προς αξιοποίηση. Η χαμηλή πυκνότητα δόμησης και τα υψηλά ποσοστά πρασίνων και αδόμητων χώρων σε συνδυασμό με τον αρκετά ενδιαφέροντα αρχιτεκτονικά χαρακτήρα των οικοδομημάτων, μπορούν με τις κατάλληλες μετατροπές να δημιουργήσουν μια κηπούπολη για σύγχρονη κατοίκηση πολύ κοντά στο κέντρο της πόλης.

Στην κατεύθυνση αυτή, σε μια πρόταση αποκατάστασης και ανάδειξης του οικισμού, σχεδιάζονται ορισμένες αλλαγές. Σε επίπεδο αστικού χώρου, βασική πρόθεση είναι η ανατροπή της πολυπλοκότητας του πρώτου σχεδιασμού. Σκοπός είναι η απόδοση της αίσθησης της κλίμακας του χώρου και η ταυτόχρονη οπτική ενοποίηση όλου του οικισμού. Παράλληλα η δημιουργία τοπικών κεντρικοτήτων κοντά σε κάθε μία από τις δωδεκαώροφες πολυκατοικίες και η σύνδεση όλου του οικισμού με μεγάλους πεζοδρόμους που διατρέχουν την ζώνη με τους χώρους εκπαίδευσης, είναι δυνατόν να συμβάλλουν στην κατεύθυνση αυτή. Ο χαρακτήρας του άλσους μέσα σε ένα αστικό περιβάλλον πρέπει να διατηρηθεί και να ενισχυθεί. Προτείνονται φυτεύσεις με πιο ελεύθερη διάταξη, ανάμεσα σε επίπεδα σκληρών υλικών που επιτρέπουν τις κινήσεις προς όλες τις κατευθύνσεις, χωρίς να ορίζουν υποχρεωτικά την πορεία των πεζών.


Όσον αφορά την αποκατάσταση των κτιρίων, προτείνεται η απομάκρυνση από τις όψεις όλων των μεταγενέστερων προσθηκών και η επαναφορά τους σε μια καθαρή μορφή, ενσωματώνοντας και την ανάγκη για ηλιοπροστασία. Οι κατόψεις επανασχεδιάζονται με σύγχρονους μετρικούς χωρικούς όρους και προδιαγραφές ώστε να δύνανται να καλύψουν τις σημερινές ανάγκες αλλά και να εξασφαλίζεται η προσβασιμότητα όλων των ατόμων. Στο συγκρότημα των δωδεκαώροφων πολυκατοικιών επί της οδού Λαγκαδά, μεταξύ των δύο πύργων, σχεδιάζεται κτιριακή προσθήκη με απόλυτα αναστρέψιμο χαρακτήρα. Σε επίπεδο χρήσεων, η κατοικία είναι αυτή που διατηρείται ενώ αλλαγές προκύπτουν στα ισόγεια καταστήματα της οδού Λαγκαδά.


** Στην διπλωματική εργασία Αποκατάσταση και ανάδειξη του συγκροτήματος εργατικών κατοικιών του «Οικισμού Πύλης Αξιού» που εκπονήθηκε από τον αρχιτέκτονα μηχανικό Σάκκο Δημοσθένη με επιβλέπουσα την επικ. καθηγήτρια Μαρία Δούση στο πλαίσιο του προγράμματος μεταπτυχιακών σπουδών Προστασία, Συντήρηση και Αποκατάσταση Μνημείων Πολιτισμού, μελετήθηκε ο οικισμός στο σύνολό του, τόσο ιστορικά, αρχιτεκτονικά αλλά και σε επίπεδο αστικού σχεδιασμού. Επιπλέον, εξετάστηκαν τρόποι και λόγοι ανάδειξης και αποκατάστασης αυτού και των μοντέρνων κτιρίων του.

Βιβλιογραφία
• Συγκροτήματα κατοικιών οργανωμένης δόμησης στην Ελλάδα: δυνατότητες και προοπτικές αναβάθμισης των οικισμών του οργανισμού εργατικής κατοικίας (Ο.Ε.Κ), Γκουβούση Σ., διδακτορική διατριβή Α.Π.Θ., Θεσσαλονίκη, 2011
• Η αναζήτηση του «ωραίου» στις πρώτες εργατικές κατοικίες του 19ου αιώνα, Κουρνιάτης, έκδοση ΤΕΕ, Αθήνα, 2005
• Το ζήτημα της κατοικίας, F. Engels, Σύγχρονη Εποχή, Αθήνα, 2012 (μετάφραση του The Housing Question)
• Social Housing in Europe II_A review of policies and outcomes, Kathleen Scanlon and Christine Whitehead, έκδοση London School of Economics and Political Science, Λονδίνο, 2008
• Από την «Αυλή του Καρλ Μαρξ» στη «Μάχη της Παράγκας», xx, 4ο τεύχος του περιοδικού Carex Flacca, Αθήνα, 2015
• Η αριστερή ιδεολογία στην Πολεοδομία στην «Άνοιξη του ’60», Γεωργίου Μ.Σαρηγιάννη, αρχιτεκτονικές ματιές_ πρόσβαση μέσω διαδικτύου, 2013
• Ville Radieuse / Le Corbusier, ArchDaily, πρόσβαση μέσω διαδικτύου, 2013
• Η στέγαση των προσφύγων, Νίκος Μπελαβίλας, online courses ΕΜΠ, πρόσβαση μέσω διαδικτύου, 2018
• Το διαχρονικό έργο του ΟΕΚ και η κοινωνική σημασία του, Μαγειρίδη Μαρία-Ιωάννα_Ράμφου Σεβαστή, πρόσβαση μέσω διαδικτύου, Πειραιάς, 2016
• A Union of Home Owners, Doling and Ford, άρθρο στο European Journal of Housing Policy, πρόσβαση μέσω διαδικτύου, 2007
• Αθηναϊκός Μοντερνισμός, πρόσβαση μέσω διαδικτύου, 2018
• Ψηφιοποιημένο αρχείο ΟΕΚ
• Εθνικό Τυπογραφείο
• Εβραϊκοί τόποι, xx, πρόσβαση μέσω διαδικτύου, Θεσσαλονίκη, 2018
• Χαρτογραφώντας τους προσφυγικούς συνοικισμούς στη Θεσσαλονίκη κατά τα πρώτα τριάντα χρόνια του 20ού αιώνα, Σαββαΐδης Π. πρόσβαση μέσω διαδικτύου, Θεσσαλονίκη, xx
