ΕΙΚΟΝΕΣ – BINTEO: Αυτά είναι τα σχέδια του σταθμού Βενιζέλου
Παρουσιάστηκαν τα σχέδια για τον σταθμό Βενιζέλου. Εικόνες και βίντεο από την παρουσίαση.
Τα σχέδια του σταθμού Βενιζέλου παρουσιάστηκαν κατά τη σύσκεψη που έγινε στα γραφεία της Αττικό Μετρό ΑE στην Θεσσαλονίκη, με την συμμετοχή του Υπουργού Υποδομών και Μεταφορών κ. Κώστα Καραμανλή, του Γενικού Γραμματέα Υποδομών κ. Γιώργου Καραγιάννη, τον Γενικό Γραμματέα Μεταφορών κ. Νίκου Σταθόπουλο, του πρόεδρο της Αττικό Μετρό ΑΕ, κ. Νίκου Ταχιάου και του διευθύνοντος συμβούλου της Αττικό Μετρό κ. Νίκου Κουρέτα.

«Τα χρονοδιαγράμματα θα τηρηθούν για το Μετρό Θεσσαλονίκης και η αυριανή επίσκεψη του πρωθυπουργού Κυριάκου Μητσοτάκη γίνεται και γι’ αυτόν τον λόγο, για να σηματοδοτήσουμε ότι κάτι αλλάζει σε αυτή την πόλη, το έργο θα συνεχιστεί και θα παραδοθεί ολόκληρο το 2023», δήλωσε ο υπουργός Υποδομών και Μεταφορών Κώστας Καραμανλής.
Ο υπουργός κατέβηκε στον σταθμό Βενιζέλου, όπου διαπίστωσε ότι έχει ξεκινήσει η απομάκρυνση της επίχωσης και τόνισε πως αυτό σημαίνει ότι θα εφαρμοστεί η λύση «και Μετρό και αρχαία», με την απομάκρυνση και επανατοποθέτηση αρχαιοτήτων.

Απαντώντας σε ερωτήσεις δημοσιογράφων για το θέμα των αρχαίων στο σταθμό Βενιζέλου, ο υπουργός είπε ότι η απόσπαση και επανατοποθέτηση αρχαίων έχει γίνει και στον σταθμό Αγία Σοφία του Μετρό Θεσσαλονίκης και στο Μετρό της Αθήνας και άλλων στην Ευρώπη και παρατήρησε: «Θεωρούμε ότι με την απόσπαση και την επανατοποθέτηση προστατεύουμε τα αρχαία. Τέρμα στους μύθους. Εμείς θέλουμε και αρχαία, θέλουμε και Μετρό».
Επισήμανε πως μετά και την απόφαση του ΚΑΣ είναι όλοι οι φορείς υπέρ της λύσης με απόσπαση και επανατοποθέτηση αρχαιοτήτων και ζήτησε να σταματήσει η «διχόνοια» γύρω από το ζήτημα των αρχαίων.
«Να αφήσουμε τη διχόνοια που υπήρχε, να κοιτάξουμε μπροστά, όλοι οι φορείς συμφωνούν, πρέπει επιτέλους κάποτε η Θεσσαλονίκη να αποκτήσει ένα σύγχρονο Μετρό με απόλυτο σεβασμό στα αρχαία», δήλωσε ο κ. Καραμανλής.
Σε ερώτηση αν ανησυχεί για το ενδεχόμενο να προκύψουν καθυστερήσεις ύστερα από προσφυγές, απάντησε πως ο καθένας έχει το δικαίωμα να κάνει προσφυγή, όμως αυτός που θα την κάνει φέρει και το βάρος της ευθύνης.
Για τον σταθμό Βενιζέλου είπε πως το χρονοδιάγραμμα είναι στους επόμενους 12 μήνες να έχουν τελειώσει οι αρχαιολογικές εργασίες και η κατασκευή του να πάρει 18 μήνες.

Είπε ακόμα ότι πολύ γρήγορα θα ξεκινήσουν και οι διαγωνιστικές διαδικασίες για τον φορέα υλοποίησης του Μετρό Θεσσαλονίκης. Τον κ. Καραμανλή ξενάγησε στο σταθμό Βενιζέλου ο πρόεδρος της «ΑΤΤΙΚΟ ΜΕΤΡΟ Α.Ε.» Νίκος Ταχιάος, ενώ συνοδευόταν από τους γενικούς γραμματείς Υποδομών Γιώργο Καραγιάννη, Μεταφορών Νίκο Σταθόπουλο και τον διευθύνοντα σύμβουλο της «ΑΤΤΙΚΟ ΜΕΤΡΟ» Νίκο Κουρέτα.

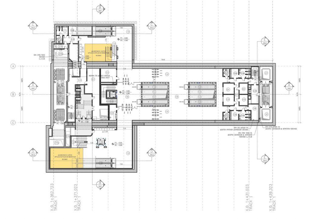
ΕΠΑΝΑΣΧΕΔΙΑΣΜΟΣ ΣΤΑΘΜΟΥ «ΒΕΝΙΖΕΛΟΥ» ΜΕ ΑΠΟΣΠΑΣΗ ΚΑΙ ΕΠΑΝΑΤΟΠΟΘΕΤΗΣΗ ΑΡΧΑΙΟΤΗΤΩΝ ΤΕΧΝΙΚΗ ΠΕΡΙΓΡΑΦΗ
Ο Σταθμός «Βενιζέλου» είναι ο τρίτος από τα βορειοδυτικά σταθμός του Μετρό Θεσσαλονίκης και αναμένεται να εξυπηρετεί 65.000 επιβάτες ημερησίως .
Κατά την κατασκευή του, η αρχαιολογική ανασκαφή που προηγήθηκε αποκάλυψε τμήμα της πολεοδομικής οργάνωσης της Βυζαντινής πόλης σημαντικής αρχαιολογικής αξίας. Τα υφιστάμενα αρχαιολογικά ευρήματα θα επανατοποθετηθούν σχεδόν στο σύνολό τους δηλ σε ποσοστό περίπου 92%, οριζοντιογραφικά και υψομετρικά στην ίδια ακριβώς θέση που βρέθηκαν. Για να επιτευχθεί αυτό, η πλάκα του επιπέδου -1 τοποθετείται σε υψόμετρο χαμηλότερο από την συμβατικά προβλεπόμενη θέση της.
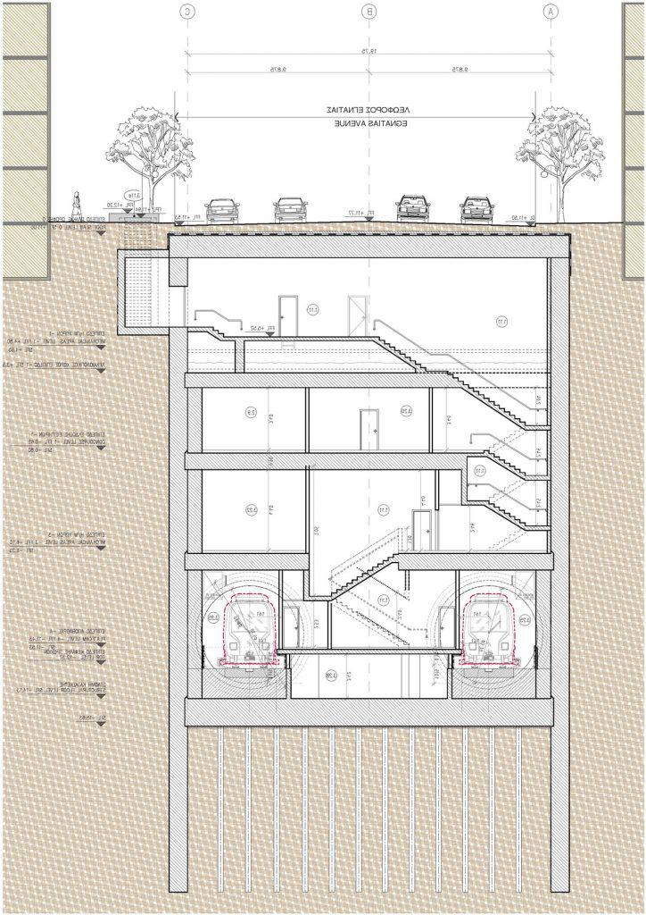
Το κτίριο του Σταθμού αποτελείται από 4 κύρια επίπεδα:
- Επίπεδο Οδού (Επίπεδο 0)
Ο Σταθμός έχει δύο ισοδύναμες προσβάσεις εκατέρωθεν της οδού Εγνατίας. Και οι δύο προσβάσεις κατασκευάζονται ως το επίπεδο -2, εξυπηρετώντας τον αρχαιολογικό χώρο και το επίπεδο διακίνησης επιβατών του μετρό. Μέρος των προσβάσεων παραμένει ανοικτό με κάλυψη γυάλινων στεγάστρων, ώστε να υπάρχει οπτική επαφή και φυσικός φωτισμός προς το επίπεδο -1 του αρχαιολογικού χώρου. Οι προσβάσεις διαθέτουν κυλιόμενες και σταθερές κλίμακες ενώ η νότια διαθέτει και ανελκυστήρα.
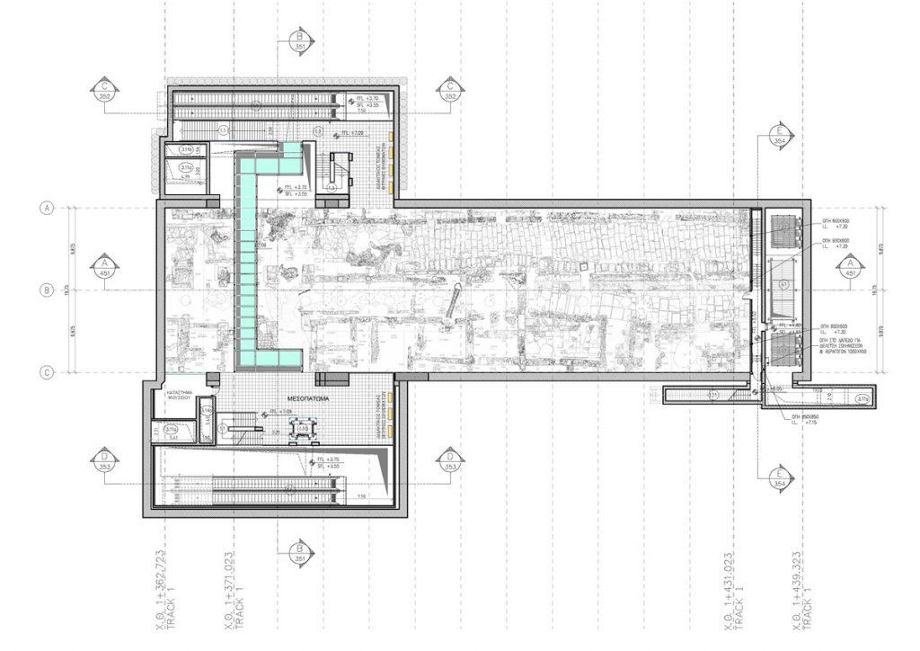
- Επίπεδο Θέασης Αρχαιοτήτων (Μεσοπάτωμα)
Το μεσοπάτωμα διαμορφώνεται στο χώρο των εισόδων στο ενδιάμεσο του ύψους μεταξύ της πλάκας οροφής του σταθμού και του αρχαιολογικού χώρου. Είναι προσβάσιμο από τις σταθερές κλίμακες και τον ανελκυστήρα. Το σύνολο του Μεσοπατώματος, επιφανείας περίπου 440τμ., λειτουργεί ως χώρος έκθεσης ευρημάτων και εισαγωγή στον διδακτικό τομέα με βιτρίνες εκθεμάτων, οθόνες προβολής, επιφάνειες επεξηγηματικών κειμένων κτλ.
Στη στάθμη του μεσοπατώματος τοποθετείται διάδρομος που γεφυρώνει τη Βόρεια και Νότια Πρόσβαση του Σταθμού, εντός του αρχαιολογικού χώρου από μεταλλικό σκελετό αναρτημένο από την οροφή με επικάλυψη από υαλοπίνακες ασφαλείας, μια ελαφριά κατασκευή που επιτρέπει τη βέλτιστη θέαση των αρχαιοτήτων.
- Επίπεδο Αρχαιοτήτων (Επίπεδο -1)
Στο επίπεδο αυτό που είναι προσβάσιμο από τις κυλιόμενες και σταθερές κλίμακες των εισόδων καθώς και τον ανελκυστήρα, εκτίθενται οι ευρεθείσες αρχαιότητες σε άμεση γειτνίαση με την διαδρομή των επιβατών του μετρό. Στη νότια πρόσβαση δίνεται και η δυνατότητα εισόδου στον αρχαιολογικό χώρο εξασφαλίζοντας την άμεση και βιωματική εμπειρία αυτού.
Στο χώρο και των δύο εισόδων σε αυτό το επίπεδο προβλέπεται επανατοποθέτηση αρχαιολογικών ευρημάτων από την μελλοντική ανασκαφή σε συνέχεια του υφιστάμενου αρχαιολογικού χώρου
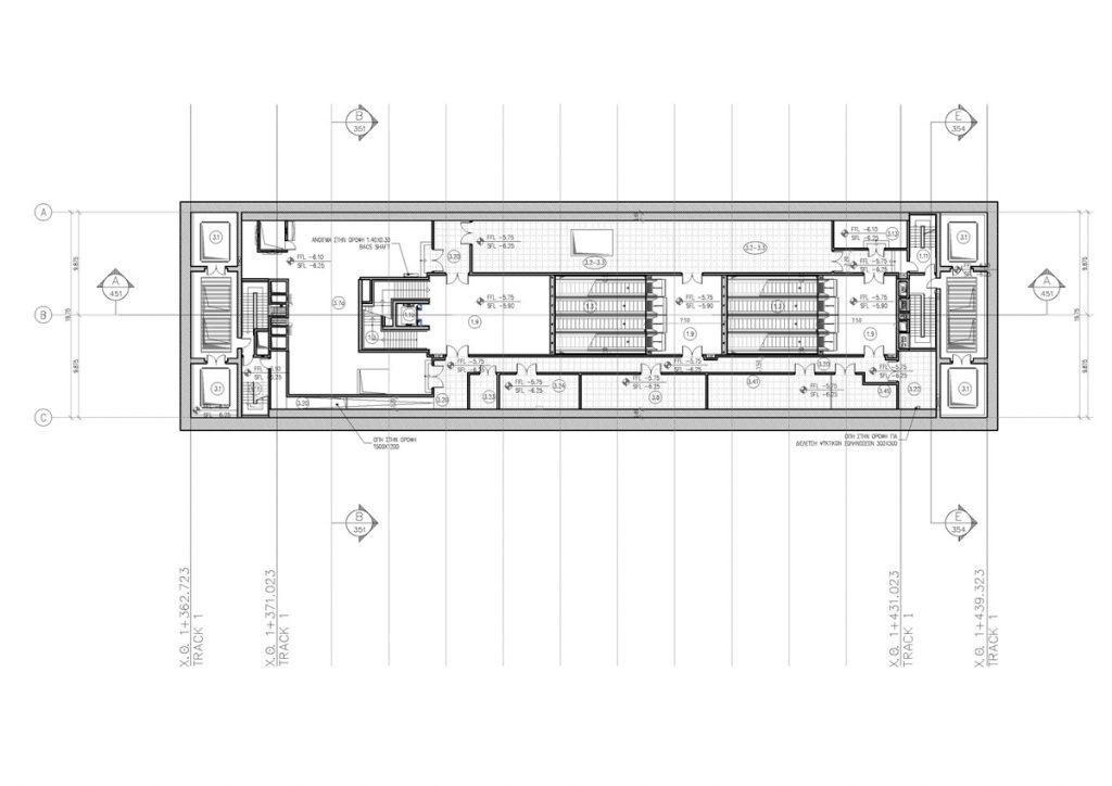
- Επίπεδο Έκδοσης Εισιτηρίων – Κίνησης Επιβατών (Επίπεδο -2)
Στο επίπεδο αυτό που είναι τυπικό των σταθμών της Θεσσαλονίκης, καταλήγουν οι σταθερές και κυλιόμενες κλίμακες και ο ανελκυστήρας των προσβάσεων από το επίπεδο οδού και ξεκινούν οι σταθερές και κυλιόμενες κλίμακες και ο ανελκυστήρας προς την αποβάθρα. Ταυτόχρονα, περιλαμβάνονται οι χώροι και οι εγκαταστάσεις έκδοσης και επικύρωσης των εισιτηρίων, οι χώροι προσωπικού και μηχανολογικοί χώροι. Τέλος, διατίθεται χώρος 60τ.μ. στη Βόρεια Πρόσβαση και 80τ.μ. στη Νότια Πρόσβαση για την ανάδειξη αρχαιοτήτων και πληροφοριακού υλικού.
- Επίπεδο Ηλεκτρομηχανολογικών Χώρων (Η/Μ) (Επίπεδο -3)
Στο επίπεδο αυτό τοποθετούνται όλες οι υπόλοιπες απαιτούμενες για τη λειτουργία του σταθμού Ηλεκτρομηχανολογικές Εγκαταστάσεις.
- Επίπεδο Αποβάθρας (Επίπεδο -4)
Στο επίπεδο αυτό βρίσκεται η κεντρική αποβάθρα και εκατέρωθεν οι σιδηροτροχιές των συρμών προς τις δύο κατευθύνσεις. Από το Επίπεδο Αποβάθρας ξεκινούν τα δύο κλιμακοστάσια κινδύνου που βρίσκονται στα δύο άκρα του σταθμού.


Εικόνες από την επιθεώρηση έργων σε βασική γραμμή και επέκταση προς Καλαμαριά:

ΠΗΓΗ: ΑΠΕ ΜΠΕ / Νίκος Ρούμπος
