ΘΕΣΣ.ΜΟ: Δύο φοιτητές της Αρχιτεκτονικής επανασχεδιάζουν την Αγορά Μοδιάνο
Δύο φοιτητές αρχιτεκτονικής του ΑΠΘ κάνουν μια πρόταση για την Αγορά Μοδιάνο όπως την συνέθεσαν στο πλαίσιο του μαθήματος "Αποκατάσταση και επανάχρηση ιστορικών κτιρίων και συνόλων".

Ο Μάνος Χατζηκαντής και η Βικτώρια Πετροπούλου σπουδάζουν αρχιτεκτονική στο Αριστοτέλειο Πανεπιστήμιο Θεσσαλονίκης. Μετά από έρευνα πρότειναν μια λύση αποκατάστασης της Αγοράς Μοδιάνο στη Θεσσαλονίκη, στα πλαίσια του μαθήματος ‘Αποκατάσταση και επανάχρηση ιστορικών κτιρίων και συνόλων’. Ακολούθησε φοιτητητικός δαγωνισμός την Τετάρτη 6 Ιουλίου 2016 στο Τμήμα Αρχιτεκτόνων του ΑΠΘ με κριτές τους: Γιώργος Χορόζογλου, εκπρόσωπος του Τ.Ε.Ε./Τ.Κ.Μ, Δημήτρης Χατζόπουλος, πρόεδρος Σ.Α.Θ, Ανδρέας Κουράκης, από το Δήμο Θεσσαλονίκης, Δημήτρης Ζυγομαλάς, από την Υπηρεσία Νεωτέρων Μνημείων και Τεχνικών Έργων Κεντρικής Μακεδονίας του Υ.ΠΟ.ΠΑΙ.Θ, Bernard Cuomo, ελεύθερος επαγγελματίας και Νίκος Καλογήρου, πρόεδρος του Τμήματος Αρχιτεκτόνων Μηχανικών Α.Π.Θ.
Βλέποντας την κινητοποίηση σχετικά με την αγοροπωλησία της Αγοράς Μοδιάνο και της ανησυχίας της αποκατάστασης και επανάχρησης ενός εμβληματικού ιστορικού κτίριου της Θεσσαλονίκης, είναι καλό να ακούγονται νέες ιδέες και προτάσεις που ίσως συμβάλλουν στην διαμόρφωση της νέας πλέον Αγοράς Μοδιάνο.

Η στοά Μοδιάνο, έχει διατηρήσει το στίγμα της στον χάρτη της Θεσσαλονίκης, κατέχοντας εξέχουσα θέση στο κέντρο της πόλης. Το κτίριο, σε σύνδεση με τις γύρω αγορές, αποτελεί αποτύπωμα μιας ακμάζουσας εμπορικής πόλης, υπενθυμίζοντας την ιστορικότητα του. Με την πάροδο όμως των χρόνων, έχει υποστεί φθορές και μεγάλο τμήμα του είναι σήμερα σε αχρηστία, γεγονός που χρίζει άμεσης αποκατάστασης. Η μελέτη που προτείνεται, σέβεται τον αρχικό σχεδιασμό, εφαρμόζοντας όμως σύγχρονο λεξιλόγιο. Οι νέες επεμβάσεις στοχεύουν να εξυπηρετήσουν τις ποικίλες απαιτήσεις του προτεινόμενου κοινόχρηστου πολυλειτουργικού χώρου, διασφαλίζοντας την προσαρμοστικότητα του σε μελλοντικές χρήσεις. Σκοπός της μελέτης είναι η στοά να αποκτήσει και πάλι την χαμένη της αίγλη και να αποτελέσει ένα νέο ΘΕΣΣ.ΜΟ στην πόλη.

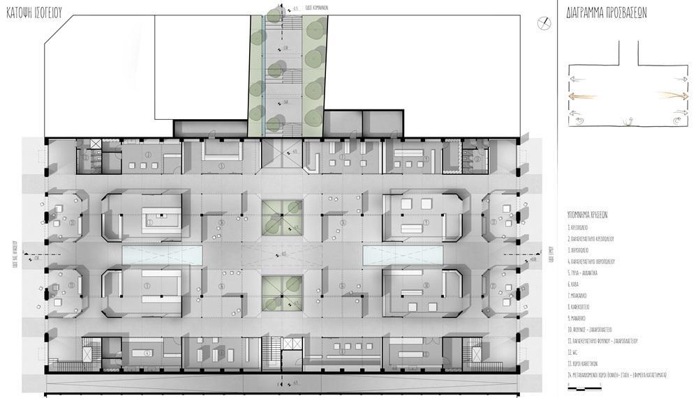
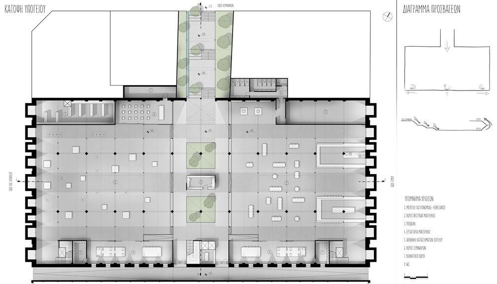
Κεντρική ιδέα του ανασχεδιασμού είναι η ανάπτυξη της στοάς σε τρία αλληλένδετα άλλα και ταυτοχρόνως ανεξάρτητα επίπεδα (υπόγειο, ισόγειο, εξώστες). Έμφαση έχει δοθεί στην διευκόλυνση των οπτικών φυγών μέσω της κλιμάκωσης των επιπέδων αλλά και των τριών οπών στην πλάκα οροφής υπογείου. Η πρόσβαση στη στοά γίνεται από τις κύριες όψεις Ερμού και Βασ. Ηρακλείου, ενώ στο υπόγειο πραγματοποιείται από την νέα κατάβαση στην οδό Κομνηνών και από την πλευρική είσοδο της υπάρχουσας ράμπας. Επιπρόσθετα, για την καλύτερη επιδίωξη φυσικού φωτισμού στο εσωτερικό της στοάς, το κεντρικό εγκάρσιο τμήμα της στέγης αντικαθίσταται με γυαλί. Νέο στοιχείο αποτελεί η διάσπαση των κυψελών, σε πλήρες και κενό τμήμα, με υψομετρική διαφορά αυτών, ώστε τα δώματα να είναι πλέον βατά από την στάθμη του εξώστη. Η γραμμική προσπέλαση του κτιρίου αντικαθίσταται από ελεύθερη πολυλειτουργική κάτοψη, μετατρέποντας την κίνηση του επισκέπτη από διαδρομή σε στάση.

Με βασικό άξονα την λειτουργικότητα, επανασχεδιαστήκαν οι εσωτερικοί χώροι και προτάθηκαν διαφορετικές χρήσεις ανά επίπεδο. Στο υπόγειο έχουν τοποθετηθεί χώροι εργαστηρίων και φεστιβάλ μαγειρικής αλλά και μουσείο γαστρονομίας. Στο ισόγειο έχει διατηρηθεί ο χαρακτήρας της αγοράς τροφίμων με ενιαία-διαμπερή καταστήματα. Οι εξώστες διαθέτουν χώρους αναψυχής και εστίασης.

Το κέλυφος του και οι όψεις του αποκαθίστανται και επανέρχονται στην αρχική τους κατάσταση, αφαιρώντας κάθε αυθαίρετη προσθήκη. Εσωτερικά στην στοά είναι εμφανής ο διάλογος του παλιού με το νέο, αφού έχει διατηρηθεί και ο σκελετός που φέρει την στέγη σε επαφή με τον νέο μεταλλικό σκελετό με ευέλικτα στοιχεία πλήρωσης. Ευρύχωροι χώροι γεμάτοι φως έχουν σχεδιαστεί για να παραλάβουν τις νέες χρήσεις και να ξαναδώσουν ζωή στη στοά Μοδιάνο, σε αυτό τον νέο ΘΕΣΣ.ΜΟ.


