Θεσσαλονίκη: Αλλάζει όψη η πλατεία Ερνέστου Εμπράρ-ΕΙΚΟΝΕΣ
Θα γεννηθούν ένα πάρκο πρασίνου, μια καινούργια παιδική χαρά, ενώ θα διαμορφωθεί και υπαίθριος χώρος στάθμευσης
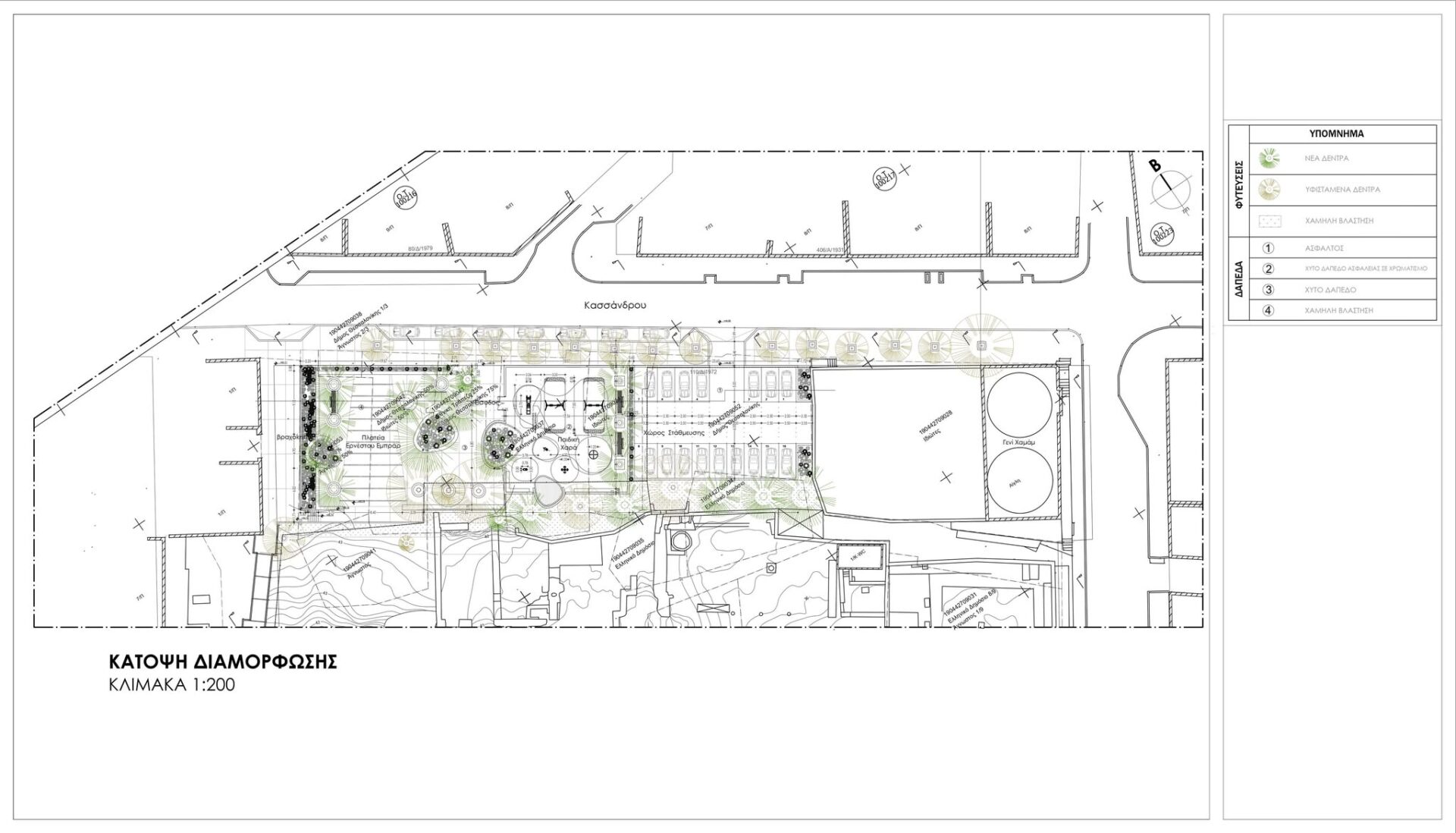
Τη «μεταμόρφωση» της πλατείας Ερνέστου Εμπράρ, που βρίσκεται επί της οδού Κασσάνδρου, ακριβώς επάνω από την εκκλησία του Αγίου Δημητρίου, προγραμματίζει για το προσεχές διάστημα η διοίκηση του δήμου Θεσσαλονίκης.
Εκεί, θα «γεννηθεί» με χορηγία ένα πάρκο πρασίνου που θα λειτουργεί ως καθιστικός χώρος για τους κατοίκους και τους επισκέπτες και μια καινούργια παιδική χαρά, ενώ από πλευράς δήμου θα διαμορφωθεί ο υπαίθριος χώρος στάθμευσης.

‘Οπως ανέφερε ο δήμαρχος Θεσσαλονίκης, Στέλιος Αγγελούδης, στο πλαίσιο συνέντευξης Τύπου η μελέτη είναι ήδη έτοιμη και αποτελεί χορηγία του αρχιτέκτονα Μπερνάρ Κουόμο, ενώ τα χρήματα για την ανάπλαση του χώρου θα δοθούν από την γαλακτοβιομηχανία.

«Η μελέτη είναι έτοιμη και ξεκινούν οι διαδικασίες έγκρισης από το Κεντρικό Αρχαιολογικό Συμβούλιο», είπε ο κ. Αγγελούδης εκτιμώντας πως μέσα στο επόμενο τρίμηνο θα αρχίσουν οι εργασίες. Από την πλευρά του ο αντιδήμαρχος Τεχνικών Έργων, Πρόδρομος Νικηφορίδης, συμπλήρωσε πως το έργο θα ολοκληρωθεί και θα παραδοθεί εντός του 2025.

Η συγκεκριμένη πλατεία έλαβε το όνομα του Γάλλου αρχιτέκτονα, αρχαιολόγου και πολεοδόμου, Ερνέστου Εμπράρ, που έγινε ιδιαίτερα γνωστός για τα σχέδια που εκπόνησε για την ανοικοδόμηση της Θεσσαλονίκης επί θητείας Μπουτάρη και βρίσκεται με «πρόσωπο» προς την Κασσάνδρου, στην οποία καταλήγει ο μνημειακός άξονας της Αριστοτέλους.

«Σημαία της δημοτικής αρχής είναι το πράσινο και ο δημόσιος χώρος», συμπλήρωσε ο κ. Αγγελούδης, συμπληρώνοντας πως τις επόμενες ημέρες θα εγκαινιαστεί η νέα παιδική χαρά στο αναπλασμένο Πεδίον του Άρεως, ενώ σύντομα θα παραδοθούν δύο νέα «Πάρκα Τσέπης» στην ‘Ανω Πόλη, στην οδό Μπουμπουλίνας και στην Κόκκινη Βρύση.

Δείτε κι άλλες εικόνες από την ανάπλαση



Δείτε τον χώρο και πανοραμικά

Ιστορική όψη του διοικητικού κέντρου της Θεσσαλονίκης

Δείτε και τις κατόψεις διαμόρφωσης






