Αποκλειστικό: Αυτά είναι τα σχέδια της μελέτης για τον Σταθμό Βενιζέλου
Η parallaxi αποκαλύπτει για πρώτη φορά αποκλειστικά τα πρώτα σχέδια της μελέτης που αφορά στη νέα τεχνική λύση που εγκρίθηκε από το ΚΑΣ στις 24/1/2017 και στην οποία συμφωνούν όλοι οι εμπλεκόμενοι φορείς
Χρειάστηκαν 4 χρόνια για να καταλήξουμε εδώ. Στο να διατηρηθεί δηλαδή κατά χώραν το μεγαλύτερο δυνατόν τμήμα των αρχαιοτήτων που έχουν αποκαλυφθεί. Δεν τη λες τρύπα στο νερό αυτήν την κατάληξη (τάδε έφη Στράτος Σιμόπουλος πρώην Γραμματέας Δημοσίων Έργων), αλλά σίγουρα αναρωτιέται ο καθένας μας γιατί έπρεπε να σπαταληθούν 4 χρόνια για το αυτονόητο. Μα φυσικά επειδή η συγκεκριμένη λύση ήταν και η πιο ακριβή κι ας έλεγαν πριν τέσσερα χρόνια πως είναι και ανέφικτη. Εφικτή ήταν από πάντα. Δυστυχώς τώρα πια είναι και η πιο χρονοβόρα γιατί θα πάρει άλλα 4 χρόνια. Αυτά ακριβώς που χάθηκαν δηλαδή. Το Μετρό θα παραδοθεί μεν το 2020, όπως έχει ανακοινωθεί, αλλά θα περνάει υπογείως από τον Σταθμό Βενιζέλου χωρίς να σταματά. Ο Σταθμός Βενιζέλου που χωροθετείται στη συμβολή των οδών Εγνατία και Βενιζέλου, στο κέντρο της πόλης και αναμένεται να έχει από τις υψηλότερες επιβατικές κινήσεις, υπολογίζεται να παραδοθεί τέλη του 2021. Έχουμε στα χέρια μας αποκλειστικά τα πρώτα σχέδια της μελέτης που αφορά στη νέα τεχνική λύση που εγκρίθηκε από το ΚΑΣ στις 24/1/2017 και στην οποία συμφωνούν όλοι οι εμπλεκόμενοι φορείς: η Αττικό Μετρό ΑΕ, το Υπουργείο Πολιτισμού και η Εφορεία Αρχαιοτήτων, το Υπουργείο Υποδομών και ο Δήμος Θεσσαλονίκης. Μένει τώρα να επανακινηθεί το έργο που ήδη μετρά 5 χρόνια καθυστερήσεων.

Η ΤΕΧΝΙΚΗ ΛΥΣΗ ΓΙΑ ΤΗΝ ΚΑΤΑΣΚΕΥΗ ΤΟΥ ΣΤΑΘΜΟΥ ΒΕΝΙΖΕΛΟΥ
Σύμφωνα με την αρχική μελέτη του ο Σταθμός περιελάμβανε τέσσερα υπόγεια επίπεδα, όπου στο επίπεδο -1 τοποθετούνταν τα ακυρωτικά μηχανήματα και στο επίπεδο -4 βρισκόταν οι αποβάθρες. Στα επίπεδα -2 και -3 τοποθετούνταν οι Η/Μ εγκαταστάσεις. Στο σταθμό έχουν ήδη κατασκευαστεί το μόνιμο περιμετρικό κέλυφος με διαφραγματικούς τοίχους, οι πάσσαλοι προσωρινής αντιστήριξης στις προσβάσεις και παρακάμφθηκαν τα δίκτυα των ΟΚΩ (ΟΡΓΑΝΙΣΜΩΝ ΚΟΙΝΗΣ ΩΦΕΛΕΙΑΣ). Επίσης έχουν διανοιχθεί οι δυο σήραγγες.

Η κατασκευή των διαφραγματικών τοίχων, διαστασιολογημένων για σταθμό cover & cut, δημιουργεί δεσμεύσεις ως προς τη γεωμετρία και τη φέρουσα ικανότητα τους. Πρόσθετες δεσμεύσεις ως προς τη γεωμετρία δημιουργούνται από την ύπαρξη των σηράγγων. Για την κατασκευή του σταθμού εκτελέστηκε αρχαιολογική ανασκαφή, η οποία έφτασε σε βάθος περίπου 7m και έχει σταματήσει στις 24.12.2012, χωρίς να έχει ολοκληρωθεί σε όλο το βάθος του αρχαιολογικού στρώματος. Προκειμένου να μην διακοπή η κυκλοφορία των οχημάτων στις οδούς Εγνατία και Βενιζέλου, τοποθετήθηκαν μεταλλικές γέφυρες. Έτσι στην περιοχή του σταθμού η Εγνατία γίνεται τετράιχνη και η Βενιζέλου, στο τμήμα της βόρεια της Εγνατίας, μονόιχνη.

Με την Υπουργική Απόφαση του Υπουργού Πολιτισμού και Αθλητισμού με Αρ. Πρωτ. ΥΠΠΟΑ/ΓΔΑΠΚ/ΔΙΠΚΑ/ΤΣΠΑΕΕ/180615/107503/9126/ 553 της 6ης Οκτωβρίου 2015 (ΑΔΑ: 6ΒΧΩ465ΦΘ3-Ξ97), εγκρίθηκε η κατά χώρα διατήρηση των αρχαιοτήτων που έχουν αποκαλυφθεί στην περιοχή του σταθμού Βενιζέλου στο πλαίσιο της κατασκευής του Μητροπολιτικού Σιδηροδρόμου Θεσσαλονίκης.
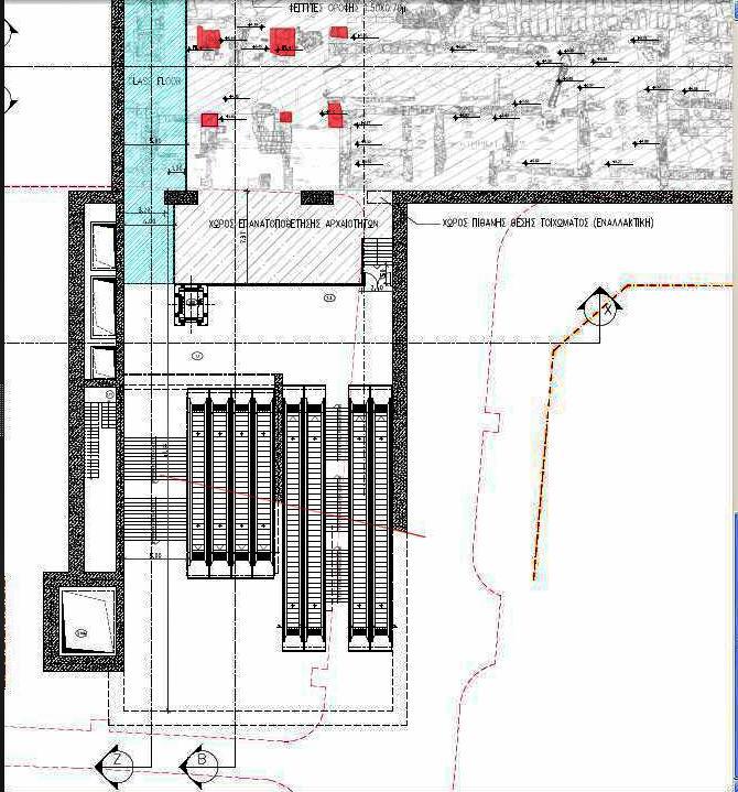
Με το νέο σχεδιασμό, ο σταθμός κατασκευάζεται με υπόγεια εκσκαφή ΝΑΤΜ, σε δυο επίπεδα, στα -3 και -4, εντός του αρχικού του περιγράμματος και στατικά ανεξάρτητος από τους υφιστάμενους διαφραγματικούς τοίχους. Η νότια είσοδος χωροθετείται νότια της οδού Εγνατίας (πλατεία Καπνεργάτη) και αναπτύσσεται σε τέσσερα επίπεδα, -1, -2, -3 και -4 και εφόσον απαιτηθεί πρόσθετος χώρος για τις Η/Μ εγκαταστάσεις θα επεκταθεί και σε πέμπτο επίπεδο.

Η βόρεια είσοδος χωροθετείται βόρεια της οδού Εγνατίας (πρώην υπαίθριο πάρκινγκ Δημαρχείου) και αναπτύσσεται σε ένα επίπεδο, το -1. Διαθέτει ένα σταθερό κλιμακοστάσιο και ένα ζεύγος κυλιόμενων κλιμάκων που καταλήγει στο επίπεδο -1. Η βόρεια είσοδος συνδέεται με τη νότια, από την οποία γίνεται η πρόσβαση στα χαμηλότερα επίπεδα, μέσω πεζογέφυρας που κατασκευάζεται στο δυτικό τμήμα του σταθμού, πάνω από τον αρχαιολογικό χώρο.
Το επίπεδο -3 της νότιας πρόσβασης όπου βρίσκονται τα ακυρωτικά μηχανήματα, συνδέεται με διάδρομο με το επίπεδο -3 του σταθμού, από το οποίο γίνεται η πρόσβαση στο επίπεδο -4 που βρίσκεται η αποβάθρα. Στη νότια είσοδο, υπάρχει ένα σταθερό κλιμακοστάσιο και δύο ζεύγη κυλιόμενων κλιμάκων. Δυο ζεύγη κυλιόμενων κλιμάκων εξυπηρετούν την πρόσβαση στην αποβάθρα μετά τα ακυρωτικά. Στη βόρεια είσοδο υπάρχει ένα σταθερό κλιμακοστάσιο και ένα ζεύγος κυλιόμενων κλιμάκων. Τα ΑΜΕΑ εξυπηρετούνται με ανελκυστήρες από τη νότια είσοδο.

Οι Η/Μ χώροι βρίσκονται στα επίπεδα -2 και -3 στην νότια πρόσβαση. Στα άκρα του σταθμού δυτικά και ανατολικά βρίσκονται τα φρεάτια εξαερισμού. Οι δυο έξοδοι κινδύνου βρίσκονται επίσης δυτικά και ανατολικά, με τη δυτική από το επίπεδο -3 να βρίσκεται εντός της νότιας πρόσβασης.
Απαιτήσεις του μηχανολογικών εξοπλισμού, της λειτουργίας, και της κατασκευής, επιβάλουν τη δημιουργία δυο φρεατίων, στο ανατολικό και δυτικό άκρο του σταθμού και εξόδου κινδύνου επίσης στο ανατολικό άκρο του σταθμού. Για την κατασκευή του δυτικού φρεατίου, χρειάζεται να αποσπαστούν οι αρχαιότητες σε επιφάνεια περίπου 104 m2 και να συνεχιστεί η ανασκαφή μέχρι εξαντλήσεως του αρχαιολογικού στρώματος. Μετά την ολοκλήρωση της κατασκευής, οι αρχαιότητες θα επανατοποθετηθούν στο σύνολό τους. Για την κατασκευή του ανατολικού φρεατίου, χρειάζεται να αποσπαστούν οι αρχαιότητες σε επιφάνεια περίπου 149 m2 και να συνεχιστεί η ανασκαφή επίσης μέχρις εξαντλήσεως του αρχαιολογικού στρώματος.
Μετά την ολοκλήρωση της κατασκευής, οι αρχαιότητες θα επανατοποθετηθούν σε επιφάνεια περίπου 13 m2, ενώ ο υπόλοιπος χώρος θα χρησιμοποιηθεί για την έξοδο κινδύνου και το φρεάτιο αερισμού.

Ιδιαίτερη είναι η μέριμνα έχει δοθεί στον βέλτιστο κατά το δυνατόν, συνδυασμό του σταθμού με τον αρχαιολογικό χώρο και την ένταξη του, χωρίς να αλλοιώνεται, στην καθημερινότητα των επιβατών. Καταβλήθηκε προσπάθεια να διατηρηθεί κατά χώρα το μεγαλύτερο δυνατόν τμήμα των αρχαιοτήτων που έχουν αποκαλυφθεί και αυτό που θα πρέπει να απομακρυνθεί, να επιστρέψει στη μεγαλύτερη κατά το δυνατόν έκταση.
Έτσι επανατοποθετούνται στο σύνολο τους οι αρχαιότητες που χρειάζεται να αποσπαστούν στην περιοχή του δυτικού φρεατίου και σε τμήμα του οι αρχαιότητες στην περιοχή του ανατολικού φρεατίου. Έτσι, μετά την ολοκλήρωση της κατασκευής ο αρχαιολογικός χώρος εντός του σταθμού θα καταλαμβάνει επιφάνεια 1.377 m2, που αντιστοιχεί στο 91% του υφιστάμενου, χωρίς να υπολογίζεται οι πρόσθετες επιφάνειες των αρχαιοτήτων της βόρειας εισόδου, 279 m2 και των αρχαιοτήτων που θα επανατοποθετηθούν στη νότια είσοδο, 144 m2. Τελικά η συνολική επιφάνεια των αρχαιοτήτων θα φτάνει τα 1.800 m2 περίπου.
Η συμβολή των οδικών αξόνων των Decumanus Maximus και Cardo, όπου βρισκόταν το Τετράπυλο ήταν σημαντικό σημείο της πόλης. Γύρω από το ιστορικό σταυροδρόμι αναπτύσσονται οι κινήσεις του σταθμού Βενιζέλου. Μάλιστα η κίνηση του Μετρό γίνεται στο άξονα του Decumanus Maximus και η πρόσβαση των επιβατών από τις εισόδους στον άξονα του Cardo.
Η θέαση του αρχαιολογικού χώρου γίνεται από το επίπεδο -1 της νότιας πρόσβασης την πεζογέφυρα και την βόρεια είσοδο. Η χωροθέτηση της πεζογέφυρας στο δυτικό άκρο του αρχαιολογικού χώρου, προσφέρει τη θέαση του συνόλου σχεδόν του αρχαιοτήτων, αλλά και εποπτική όψη του τετραπύλου. Η πρόσβαση στον αρχαιολογικό χώρο θα γίνεται με σταθερή κλίμακα, από το επίπεδο -1 στης νότιας πρόσβασης.

Η συγκεκριμένη πρόταση συνδυάζει σταθμό Μετρό με ενσωματωμένο στη λειτουργία του σημαντικό αρχαιολογικό χώρο, που καθιστά το Μετρό της Θεσσαλονίκης μοναδικό διεθνώς. Με τα υφιστάμενα στοιχεία ο χρόνος κατασκευής εκτιμάται στα τέσσερα έτη. Κατά την διάρκεια της κατασκευής θα ληφθούν όλα τα απαραίτητα μέρα ασφάλειας και οι εργασίες θα γίνουν σύμφωνα με τη νομοθεσία και τους κανόνες της καλής τεχνικής.
Πηγή της περιγραφής της τεχνικής μελέτης: ypodomes.com
