Ανακαλύψτε τα κτίρια της πόλης: 40o Δημοτικό Σχολείο – Ιωαννίδειος Σχολή
Ένα υπέροχο κτίριο που σώζεται μέχρι και σήμερα και έχει τεράστια ιστορική και συμβολική σημασία για τη Θεσσαλονίκη.

Πνιγμένα από το καυσαέριο και τις μοντέρνες πολυκατοικίες. Στέκουν δίπλα μας ενάντια στο χρόνο και την φθορά. Τα προσπερνάμε, δεν τα παρατηρούμε, σε κάποια από αυτά ζούμε και εργαζόμαστε, κάνουμε τα ψώνια μας η πίνουμε εναν καφέ. Άλλα μαραζώνουν από την αδιαφορία μας. Ζωντανά και περήφανα σύμβολα της ιστορίας της πόλης, κρύβουν σημαντικά γεγονότα, σκοτεινά μυστικά, οικογενειακές ιστορίες, τραγωδίες και χαρές. Νεοκλασικά, διατηρητέα, του ευρωπαϊκού εκλεκτισμού, του κλασικισμού, μπαρόκ, σύγχρονα αυτά είναι τα κτήρια σύμβολα της πόλης.
Το 40ο Δημοτικό Σχολείο της Θεσσαλονίκης (Ιωαννίδειος Σχολή) που βρίσκεται στην συμβολή των οδών Μανουσογιαννάκη και Φιλικής Εταιρίας πέρα από το ότι αποτελεί ένα υπέροχο κτίριο που σώζεται μέχρι και σήμερα έχει και ιστορική – συμβολική σημασία μιας και είναι το πρώτο ελληνικό δημοτικό σχολείο που ιδρύθηκε στη Θεσσαλονίκη.
Πήρε την ονομασία Ιωαννίδειος Σχολή γιατί αποτελεί δωρεά του Δημητρίου Ιωαννίδη.

Ιδρύθηκε το 1885 επί Τουρκοκρατίας και λειτούργησε σαν πλήρες εξατάξιο Δημοτικό Σχολείο Αρρένων της Χριστιανικής Κοινότητος της Μητροπόλεως Θεσσαλονίκης μέχρι το 1907. Από το 1907 και μετά, αφότου ανεγέρθη το σημερινό διδακτήριο ως δωρεά του ευεργέτου Δημητρίου Ιωαννίδη, του δόθηκε η επωνυμία «Ελληνική Αστική Σχολή Δημητρίου Ιωαννίδου Στατίστεως» μέχρι το 1914. Από το 1914 μέχρι το 1930 λειτούργησε πάλι σαν δημοτικό σχολείο με την ονομασία «Πλήρες Εξατάξιο Δημοτικό Σχολείο Αρρένων Θεσσαλονίκης». Από το 1930 και έπειτα μετονομάστηκε σε «Ιωαννίδειος Σχολή» μέχρι το 1954 όταν με απόφαση του τότε υπουργού Παιδείας μετονομάσθηκε «40ο εξατάξιο Δημοτικό Σχολείο Θεσσαλονίκης».

Είναι διώροφο, νεοκλασικό κτίσμα που ακολουθεί μορφολογικά τα κτίρια αστικών σχολών της εποχής. Αποτελείται από ημιυπόγειο, υπερυψωμένο υπόγειο, όροφο και στέγη. Οι όψεις του παρουσιάζουν πλήρη συμμετρία στα ανοίγματα. Η κύρια όψη χωρίζεται σε τρεις κάθετες ζώνες, με τον κεντρικό της άξονα να τονίζεται με την παρουσία της εισόδου αλλά και την απόληξη σε τριγωνικό αέτωμα, νεοκλασικού τύπου.
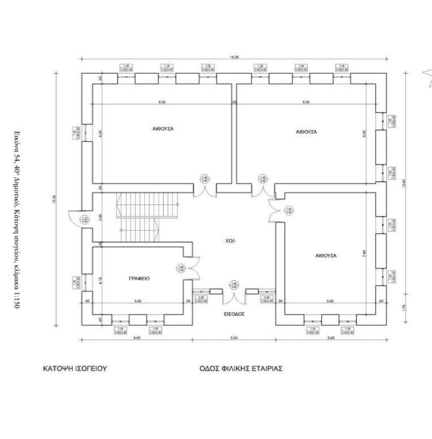
Όλα τα ανοίγματα πλαισιώνονται από ψευδοπαραστάδες που καταλήγουν σε επίκρανα. Στο τριγωνικό αέτωμα παρατηρούμε επίσης ακροκέραμα, χαρακτηριστικό στοιχείο νεοκλασικής αρχιτεκτονικής. Το κτίριο είναι ορθογωνικό με μήκος πλευρών 18.30 μέτρα παράλληλα στην πρόσοψη (ανατολική όψη) και 15.30 μέτρα κάθετα σε αυτήν. Έτσι το εμβαδόν της κάτοψης διαμορφώνεται στα 272 τ.μ.

Στο ισόγειο διαμορφώνεται εσοχή βάθους περίπου 1.85 μέτρων και πλάτους περίπου 5 μέτρων στην οποία βρίσκεται η κύρια είσοδος, η εσοχή υπάρχει και στο υπόγειο με σκοπό την στήριξη και την θεμελίωση του τοίχου του ισογείου, αντίθετα στον όροφο η εσοχή καταργείται με αποτέλεσμα την ενσωμάτωση του χώρου μέσα στον όγκο του κτιρίου.

To συνολικό ύψος του κτιρίου συμπεριλαμβανομένης της στέγης ανέρχεται περίπου σε 15.30 μέτρα. Συγκεκριμένα το ύψος του ημιυπόγειου είναι περίπου 2.80 μέτρα, του υπερυψωμένου ισογείου όπως και του ορόφου 4.55 μέτρα, ενώ το μέγιστο ύψος της στέγης φτάνει τα 3.40 μέτρα.

Το ημιυπόγειο βρίσκεται μεσοσταθμικά περίπου 1 μέτρο εντός του εδάφους, ωστόσο παρατηρούνται διαφοροποιήσεις στις όψεις, ενδεικτικά όπως φαίνεται και από τις φωτογραφίες η Βόρεια όψη καλύπτεται από το έδαφος περισσότερο από ότι η Νότια.
Οι τοίχοι του κτιρίου αποτελούνται από αργολιθοδομή στο υπόγειο η οποία λειτουργεί και ως θεμελίωση, καθώς όπως προαναφέρθηκε ένα τμήμα της βρίσκεται εντός του εδάφους και από συμπαγή οπτοπλινθοδομή στο ισόγειο και στον όροφο.

Με πληροφορίες από thessarchitecture.wordpress.com/

